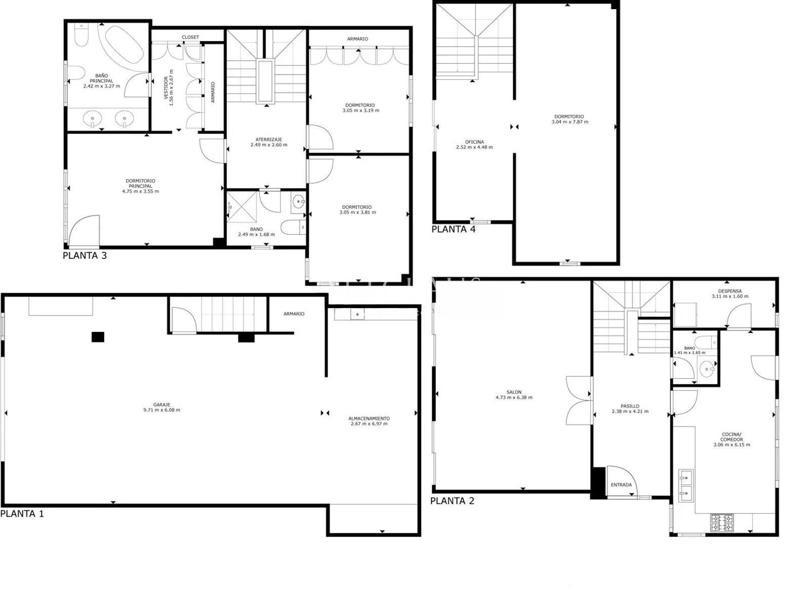
En Tiana, dentro de un entorno residencial tranquilo y bien comunicado, se presenta un adosado de 302 m² que combina amplitud, luz y espacios exteriores bien aprovechados. La vivienda se organiza en cuatro niveles, ofreciendo una distribución cómoda para familias que buscan privacidad y zonas polivalentes.La planta principal articula la vida diaria con un comedor luminoso con salida directa a la terraza, desde la que se disfrutan vistas despejadas al pueblo. La cocina office, amplia y funcional, conecta con el jardín privado y la piscina, donde también se encuentra la zona de barbacoa. Este nivel incluye lavadero independiente y un aseo de cortesía.En la primera planta se ubica la suite principal, equipada con vestidor y balcón exterior. La completan dos habitaciones dobles, ambas exteriores, y un baño completo que da servicio a esta planta. La segunda planta se destina a la buhardilla, un espacio diáfano con salida a una terraza con vistas al mar, ideal como sala de estudio, despacho, zona de ocio o dormitorio adicional.El nivel inferior alberga un garaje con capacidad para tres vehículos, aportando comodidad y almacenaje sin comprometer el espacio interior del hogar.El conjunto se complementa con calefacción de gas natural, aire acondicionado y armarios empotrados, reforzando la funcionalidad en cada estancia. La combinación de terraza, jardín, piscina privada y buhardilla convierte esta propiedad en una opción especialmente atractiva para quienes valoran espacios exteriores y estancias versátiles.Ofrecido por Setclaus, este adosado destaca por su ubicación, distribución y posibilidades, en un enclave residencial consolidado y con acceso rápido a servicios, transporte y zonas verdes.
Última modificación: 21/01/2026















































