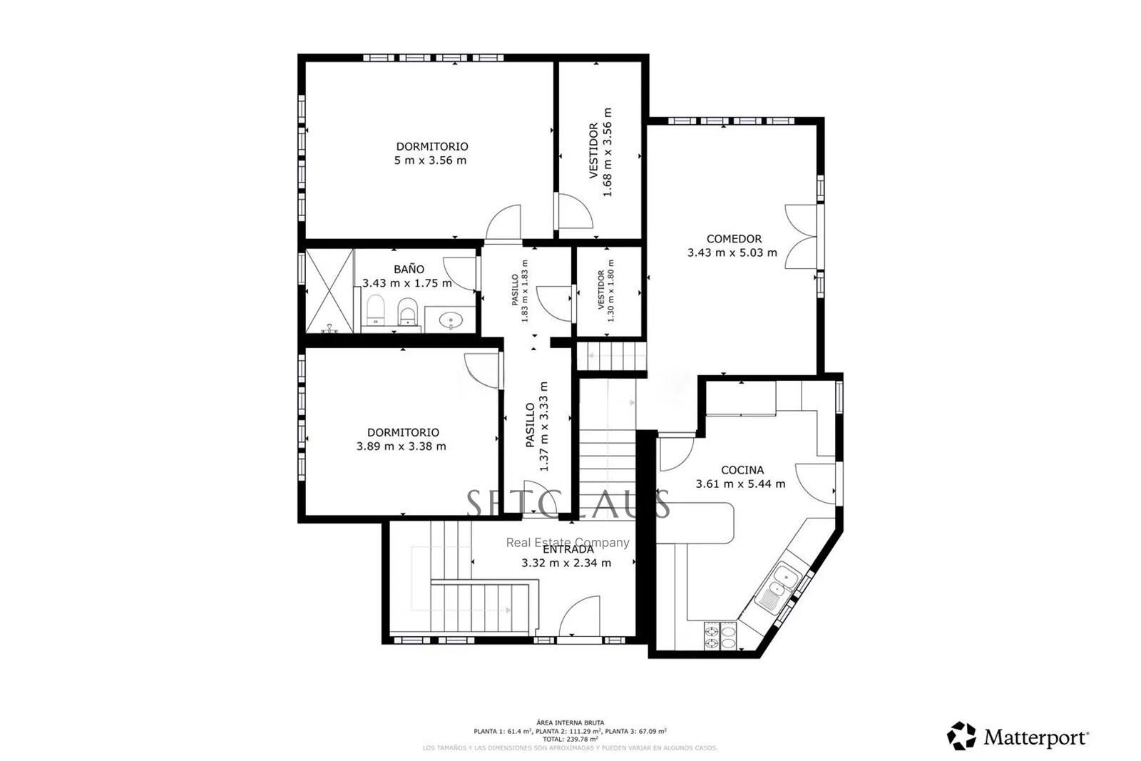
Chalet independiente en Alella Parc con 296 m² construidos y 264 m² útiles, distribuidos en cuatro medias plantas. La vivienda dispone de 4 dormitorios, 2 baños completos, cocina office y salón con chimenea. Incluye buhardilla polivalente, garaje para dos vehículos y trastero. El inmueble se levanta sobre una parcela de 700 m² con jardín privado, piscina salina, estanque , barbacoa y bodega. La terraza de 20 m² y el solárium amplían el uso exterior, orientado a maximizar la entrada de luz natural. La construcción en obra vista asegura bajo mantenimiento.Características principales: Vistas panorámicas abiertas al mar. Privacidad en el jardín, sin exposición directa a vecinos. Alta luminosidad en todas las estancias, con orientación soleada durante todo el día.La climatización está resuelta con calefacción de gas natural. La habitación en planta baja facilita accesibilidad y ofrece funcionalidad adicional sin necesidad de escaleras. La distribución y los espacios exteriores permiten un uso versátil: desde zonas de ocio familiar en la piscina y el solárium hasta espacios de reunión en la terraza o la bodega.En conjunto, se trata de un chalet independiente con vistas privilegiadas, máxima privacidad y construcción eficiente, ubicado en una zona residencial tranquila y bien conectada con Barcelona.
Última modificación: 19/01/2026






























































