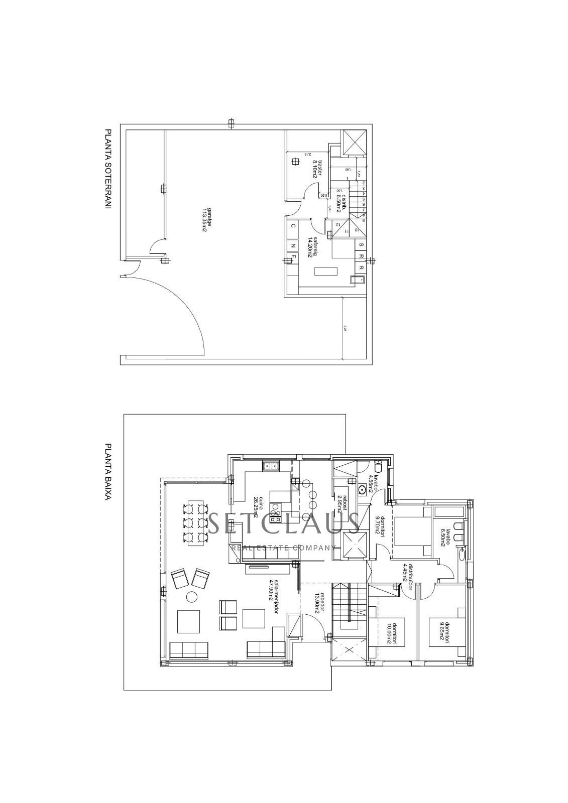
Chalet independiente en Premià de Dalt con 491 m² construidos sobre una parcela de 1040 m², distribuido en tres plantas y diseñado para ofrecer amplitud, confort técnico y una organización muy funcional para la vida familiar.En la planta principal se desarrolla la mayor parte del día a día, con una amplia cocina office con isla y un salón comedor de 50 m² con varios espacios, ambos con grandes ventanales que aportan mucha luz y bonitas vistas. En esta misma planta se ubican tres habitaciones exteriores con armarios empotrados, una de ellas en suite, además de un baño completo que da servicio al resto.La primera planta concentra tres amplias suites adicionales. Destaca una suite con vestidor y baño completo con salida a terraza, junto a dos habitaciones tipo suite, ambas con baño propio, altillo y acceso a terraza. Una distribución pensada para garantizar privacidad e independencia en cada dormitorio.En la planta inferior se sitúan el lavadero, trastero, sala de máquinas y un amplio garaje de 113m² con capacidad para varios vehículos.La vivienda incorpora un alto nivel de equipamiento técnico: sistema de geotermia, suelo radiante, domótica, aspiración centralizada y depósito de aguas de 10.000 litros. Todo orientado a eficiencia energética, confort térmico y automatización del hogar.En el exterior, el jardín privado rodea la casa y ofrece un entorno amplio y reservado, con piscina y zonas de terraza que permiten disfrutar del aire libre durante todo el año.Ubicada en una zona residencial consolidada de Premià de Dalt, combina tranquilidad, privacidad y proximidad a servicios, colegios y accesos principales del Maresme.Ofrecida por Setclaus, esta propiedad destaca por su número de suites, su equipamiento técnico avanzado y la amplitud de sus espacios interiores y exteriores.
Última modificación: 13/02/2026





















































































